Le Marais - Rénovation Appartement 35m² - Transformer un studio sombre et vétuste en T2 lumineux
Rénovation d'un 35m² dans le Marais : créer un petit appartement lumineux dans le Paris historique. Réalisé en tant que chef de projet dans l'agence Frédéric Flanquart
Le propriétaire de ce 35m², composé à l’origine d’une cuisine séparée et d’une pièce à vivre, souhaitait le transformer en un petit appartement tout équipé, afin de le louer à l'année.
Dans cet immeuble datant du 17e siècle, en plein coeur du Paris historique, nous voulions redonner tout son charme à cet appartement défraichi, maximiser sa luminosité aujourd'hui très faible et optimiser les espaces mal exploités.
Repenser la distribution : du studio au T2
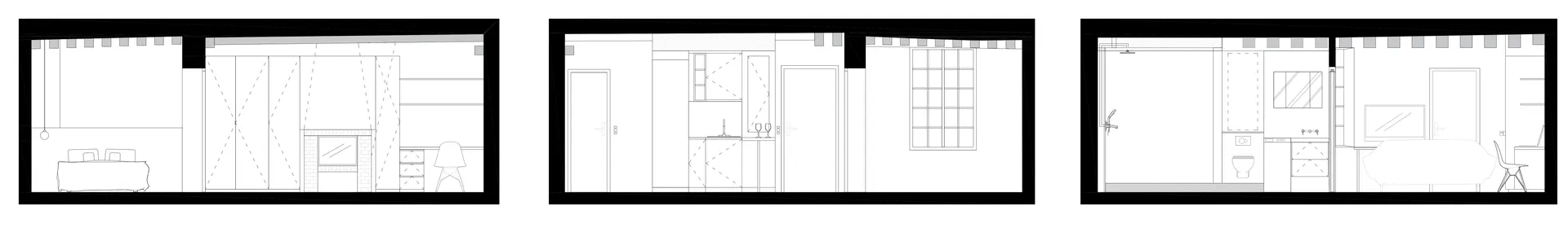
La première intervention a consisté à repenser entièrement la distribution des pièces. Les toilettes, bien trop grandes, deviennent une douche spacieuse, tandis que l'ouverture de la salle de bain est intervertie afin d'apposer, de l'autre côté de la cloison, une cuisine petite mais extrêmement optimisée.
La chambre est installée dans l'ancienne cuisine afin de faire de cet ancien studio un petit T2. Cette transformation augmente considérablement la valeur locative du bien tout en offrant une vraie séparation entre espace jour et espace nuit.


Maximiser le rangement et la fonctionnalité
De grands rangements créés sur mesure se déroulent sur le linéaire du fond de la pièce à vivre, intégrant la cheminée et un nouvel espace bureau. Cette solution permet de conserver la cheminée – élément patrimonial typique des immeubles parisiens du 17e siècle – tout en créant un maximum de rangement et une zone de travail fonctionnelle.
Dans un appartement de 35m², chaque centimètre carré compte. Les rangements sur mesure permettent d'optimiser les volumes disponibles sans encombrer visuellement l'espace.
Apporter de la lumière : blanc et teintes pastels
Les poutres et les murs sont peints en blanc ou en pastel pour éclaircir les pièces. Cette intervention simple mais radicale transforme l'atmosphère de l'appartement.
Dans un immeuble ancien du Marais, les plafonds bas et les petites fenêtres limitent naturellement la luminosité. Le choix de couleurs claires permet de compenser cette contrainte architecturale et de créer une sensation d'espace.


Une cuisine et une salle d'eau optimisées
La nouvelle cuisine, bien que petite, est extrêmement optimisée. Placée stratégiquement à côté de la salle de bain, elle bénéficie de la proximité des arrivées d'eau existantes, limitant ainsi les coûts de plomberie.
La transformation des toilettes surdimensionnées en douche spacieuse améliore considérablement le confort de la salle d'eau. Cette réorganisation intelligente des espaces sanitaires permet de gagner en fonctionnalité sans augmenter la surface totale dédiée à ces pièces.



Le résultat : un T2 lumineux et fonctionnel
Cette rénovation complète d'appartement parisien démontre comment il est possible de transformer un studio mal agencé en un véritable T2 fonctionnel, même sur 35m². La réorganisation des pièces – chambre dans l'ancienne cuisine, cuisine à la place de l'entrée de salle de bain, douche dans les anciens WC – crée une distribution logique et optimisée.
Les rangements sur mesure intégrant la cheminée et l'espace bureau prouvent qu'il est possible de conserver les éléments patrimoniaux tout en créant un maximum de fonctionnalité. Le choix de teintes claires – blanc et pastels – transforme radicalement la luminosité de cet appartement situé dans un immeuble du 17e siècle.
Un projet qui illustre parfaitement comment l'architecture d'intérieur peut révéler le potentiel d'un petit appartement parisien, en créant un véritable cocon lumineux au cœur du Marais, prêt à accueillir ses futurs locataires dans les meilleures conditions.
Quelques images de l'appartement avant et pendant le chantier











