Client : M. et Mme D. | Lieu : Cachan | Surface : 35 m² | Budget : 30 000 € | Projet : Rénovation partielle
Client : M. et Mme D. | Lieu : Cachan | Surface : 35 m² | Budget : 30 000 € | Projet : Rénovation partielle
Ouvrir, optimiser, moderniser !
Lorsque ce jeune couple, parents de deux enfants, m'a contacté pour la rénovation de leur appartement de 80m², leur objectif était clair : adapter les lieux à leur mode de vie avant d'y emménager.
Le projet se concentre sur les espaces jour, soit environ 35m² à repenser entièrement.
L'appartement disposait d'atouts indéniables avec ses beaux volumes et ses grandes baies vitrées qui apportent une belle luminosité naturelle. En revanche, le couple se heurtait à deux problématiques majeures pour une famille avec jeunes enfants : le manque d'espace de rangement et une distribution peu optimisée. Il fallait trouver des solutions pour maximiser le rangement tout en préservant la sensation d'espace.


J'ai proposé d'ouvrir la cuisine sur le séjour pour créer un espace plus convivial et mieux adapté à la vie de famille. Pour autant, il était important de bien délimiter cet espace sans cloisonner. J'ai opté pour deux éléments architecturaux : un faux plafond qui structure visuellement la zone cuisine, et une verrière en angle qui sépare sans fermer, tout en préservant la luminosité.
La cuisine elle-même a été pensée pour être simple et élégante, avec une alternance de blanc et de bois qui apporte de la chaleur. Mais au-delà de l'esthétique, elle est avant tout très fonctionnelle, adaptée aux besoins quotidiens d'une famille.
La solution pour résoudre le manque de rangements résidait dans la grande entrée. Plutôt que de la cloisonner, j'ai choisi de l'ouvrir sur le salon pour créer une continuité visuelle tout en y intégrant de grands rangements sur mesure. Cette approche permet de maximiser la capacité de stockage sans sacrifier la sensation d'espace.
L'un des éléments clés de ce projet est la création d'un meuble sur mesure qui traverse l'espace de manière fluide. Le dressing se transforme en banc, puis se retourne le long de la cuisine pour créer un meuble TV. Cette continuité crée un fil conducteur dans l'aménagement tout en multipliant les fonctions : rangement, assise, support multimédia
Pour éviter que l'ensemble ne soit trop neutre, j'ai utilisé la couleur de manière stratégique afin de donner du caractère à l'espace. Ces touches colorées structurent visuellement les différentes zones et affirment la personnalité des lieux, tout en restant dans une palette harmonieuse qui dialogue avec le blanc et le bois de la cuisine.
Ces 35m² d'espaces jour ont été transformés en un lieu de vie parfaitement adapté aux besoins d'une famille avec jeunes enfants. L'ouverture des espaces, les rangements optimisés et la fluidité créée par le mobilier sur mesure permettent de profiter pleinement des beaux volumes et de la luminosité de l'appartement, tout en offrant la fonctionnalité indispensable au quotidien.
Ce projet de rénovation d'appartement démontre qu'avec une réflexion approfondie sur les usages et une conception sur mesure, il est possible de transformer des espaces en apparence contraints en lieux de vie généreux et parfaitement adaptés.
Afin de maximiser les rangements tout en gardant une belle sensation d’espace, la grande entrée est ouverte sur le salon et dotée de grands rangements sur mesure ; le dressing se transforme en banc qui se retourne le long de la cuisine pour créer un meuble télé. La couleur permet de donner du caractère à l’espace. La cuisine, simple et élégante avec son alternance de blanc et de bois, est avant tout très fonctionnelle.


Quelques images de l'espace existant
Quelques images de l'espace existant

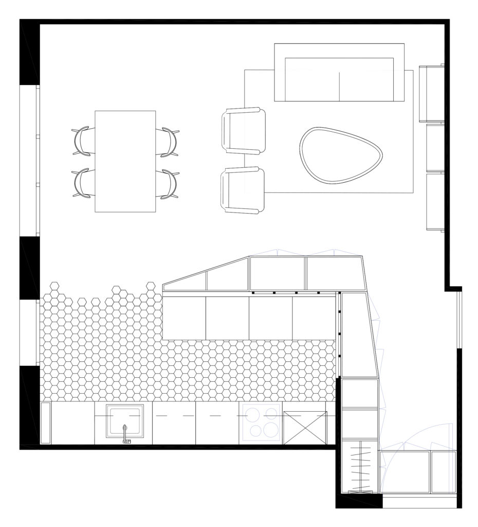
Plan existant
Plan existant

Plan projet
Plan projet

Elévations du projet : cuisine côté mur | cuisine côté salon | entrée
Elévations du projet : cuisine côté mur | cuisine côté salon | entrée