Client : P | Lieu : Bordeaux | Surface : 70 m² | Budget : 80 000€ | Projet : Rénovation totale
Client : P | Lieu : Bordeaux | Surface : 70 m² | Budget : 80000€ | Projet : Rénovation totale
titre
titre
Ce duplex de 70m² près de Bordeaux ne paraissait pas en très mauvais état de prime abord, mais tout était à refaire, notamment l'isolation pour que l'étage sous les combles soit vivable en été. L'autre défi était de concevoir une vraie salle d'eau à l'étage, indépendante des deux chambres.
Dans la configuration existante, une douche se trouvait au premier niveau, étrangement placée à côté de la cuisine, et une baignoire sabot accompagnée d'un lave-main faisait office de salle de bain à l'étage, au fond de la deuxième chambre. Cette disposition était loin d'être idéale pour un duplex familial.
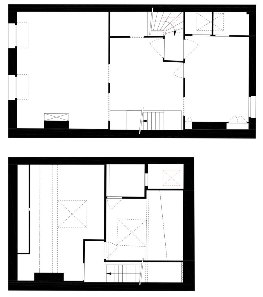
Le principal enjeu était donc de trouver le moyen de créer une vraie salle d'eau qui, bien que petite, aurait un accès indépendant aux deux chambres. Pour la déplacer le moins possible et ainsi éviter des difficultés techniques, l'idée a été de la faire simplement pivoter et de l'avancer vers le palier.
La largeur de la nouvelle pièce est donnée par l'emplacement des velux des chambres : nous venons positionner les cloisons au droit de ces derniers. La largeur intérieure de plus d'un mètre permet de disposer une douche tout au fond, précédée d'un meuble vasque et de rangements.
En dénudant le plateau de l'étage, le plancher s'est révélé très fragile : les plaques d'agglo n'avaient pas été posées à l'entraxe des solives, et certaines poutres n'avaient pas la section adéquate. Le plancher a donc été entièrement repris par un charpentier, afin de remonter les cloisons des nouvelles pièces sur une base solide.
Toute l'isolation des rampants et des murs périphériques a été réalisée par une entreprise RGE spécialisée. Ces travaux de rénovation énergétique, indispensables mais coûteux, changeant également la dimension des pièces, nous ont obligés à sans cesse adapter le projet en cours de chantier. La menuiserie sur mesure sera ainsi réalisée dans un deuxième temps.


Plan existant > Plan projet
Plan existant > Plan projet
La cloison derrière l'escalier est abattue pour créer une grande pièce à vivre ouverte. Pour ne pas arriver directement dans le séjour, un grand meuble sur mesure se déploie pour créer un sas d'entrée, bénéficiant d'un dressing et d'une banquette.
La largeur de la pièce ne permettant pas d'installer une table à manger sans obstruer la circulation, l'idée a été de la déporter contre le mur de la cheminée, sous la partie haute de l'escalier. Pour créer un enchaînement linéaire et ne pas juxtaposer des meubles les uns à côté des autres, les deux premières marches de l'escalier sont supprimées, remplacées par un coffrage devenant banquette. Dans un souci de récupération, le reste de l'escalier est simplement poncé et repeint. Le garde-corps est remplacé pour le rendre beaucoup plus moderne.
Un meuble TV est créé de l'autre côté de la cheminée, en reprenant la ligne de la banquette. En face se déploie le grand meuble sur mesure qui accueillera les nombreux livres des propriétaires. L'angle est optimisé en coin bureau, accompagné de rangements fermés. Face à l'espace repas se trouve un joli bar fermé par une porte en verre armé petite maille.




La cuisine conserve sa place, mais est ouverte sur la pièce à vivre en remplaçant la cloison pleine par une verrière dotée d'une porte coulissante en applique. Cette solution permet de conserver une séparation visuelle tout en créant une vraie continuité lumineuse entre les espaces.
Les WC sont déplacés dans l'angle de la pièce, et une pièce buanderie/cellier est créée dans le prolongement, apportant la fonctionnalité qui manquait à ce duplex.


L'étage
L'étage
En abattant le doublage creux de la chambre parentale, de précieux mètres carrés sont gagnés. Mais les dégagements créés dans le plancher pour permettre l'ouverture des fenêtres au niveau inférieur forment des caissons dépassant du niveau du sol, ce qui contraint l'aménagement de la pièce.
En refaisant le plancher, nous avons demandé au charpentier de ne faire qu'un seul et même coffrage sur toute la longueur de la pièce. Ainsi, on peut poser le lit dessus en enlevant les deux pieds avant. On garde la plus grande hauteur sous plafond pour circuler, devant le lit. Toute la largeur de la pièce, dans le fond, est occupée par des placards sur mesure.

La deuxième chambre, légèrement plus petite, est aménagée de manière simple pour devenir à l'avenir une chambre d'enfant.
La deuxième chambre, légèrement plus petite, est aménagée de manière simple pour devenir à l'avenir une chambre d'enfant.

La salle d'eau est petite mais compacte. Un WC suspendu a pu être ajouté, pour ne pas avoir à descendre et traverser la cuisine lorsque l'on est à l'étage. La douche prend toute la largeur du fond de la pièce, pour avoir des dimensions généreuses.
Un joli carrelage blanc à relief habille la douche, tandis qu'une faïence grise mouchetée est posée au sol. Cette palette sobre et contemporaine apporte de la luminosité à cette pièce sous les combles.

Cette rénovation complète de duplex illustre l'importance de ne pas se fier aux apparences. Ce qui semblait être une simple rénovation esthétique s'est transformé en travaux structurels majeurs – reprise du plancher, isolation complète des rampants – indispensables pour rendre ce logement véritablement confortable et aux normes.
L'isolation thermique par une entreprise RGE garantit désormais que l'étage sous combles est vivable été comme hiver. La création d'une véritable salle d'eau indépendante à l'étage améliore considérablement la fonctionnalité du duplex.
Au rez-de-chaussée, l'ouverture des espaces et les nombreux meubles sur mesure – meuble d'entrée, banquette sous escalier, bibliothèque, coin bureau – créent un lieu de vie généreux et parfaitement optimisé. La verrière entre cuisine et séjour apporte cette touche contemporaine qui transforme complètement l'atmosphère du duplex.
Ce projet de rénovation énergétique à Cadaujac démontre comment des travaux de fond, même imprévus, peuvent être l'occasion de repenser entièrement un logement pour le rendre plus confortable, plus fonctionnel et esthétiquement cohérent. Un duplex qui allie désormais performance thermique et qualité de vie au quotidien.
Quelques images de l'espace existant
Quelques images de l'espace existant
Le chantier (en cours)
Le chantier (en cours)



















