RDLC Rénovation - Appartement Bordeaux Jardin Public - 75m²
Rénovation d'un appartement de 75m² à Bordeaux : allier ancien et contemporain, en retrouvant de la fonctionnalité
Une fois n'est pas coutume, ce bel appartement du quartier du Jardin Public à Bordeaux aurait pu être habité par son nouveau propriétaire sans effectuer de grands travaux, hormis la salle de bain qui avait grand besoin d'être plus fonctionnelle et plus moderne. Il manquait tout de même des rangements, et l'espace chambre comme celui de la cuisine n'étaient pas pleinement satisfaisants.
Le nouveau propriétaire m'a donc demandé de lui faire des propositions mettant en valeur les beaux volumes et la luminosité de la pièce de vie. Il voulait un petit espace bureau, des rangements qui n'encombrent pas la pièce, et un ensemble plus moderne tout en étant en accord avec l'immeuble en vieilles pierres et le quartier ancien dans lequel l'appartement est situé.
Dans la pièce à vivre, il a été décidé de doubler le grand mur porteur par des rangements toute hauteur sans poignées, les rendant presque invisibles. Un petit coin bureau a été dégagé dans l'angle, et comme le propriétaire fait souvent du télétravail, il était important de pouvoir tout occulter sans avoir à tout déplacer.
Un système de porte coulissante à rideau a donc été conçu pour pouvoir dégager le plan de travail ou au contraire le masquer entièrement en passant devant, ce qui permet de tout laisser tel quel derrière. Le linéaire de rangement suit l'angle du mur et se retourne pour créer une partie meuble TV, plus légère et décorative. Un grand bandeau en chêne permet de lire cette continuité au plafond.





Une cuisine minimaliste avec une touche d'ancien
La cuisine se veut assez minimaliste et moderne, avec une prédominance de blanc. Une crédence imitant un mur brut et un îlot central en pierres massives de Frontenac vient rapporter une touche d'ancien à cette rénovation, créant un dialogue subtil entre contemporain et patrimoine.

Une salle d'eau repensée et lumineuse
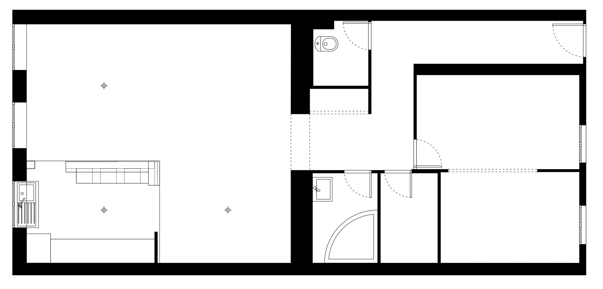
La salle d'eau était la pièce sur laquelle il fallait opérer des travaux de fond. Petite et sans fenêtre, nous avons jugé utile de créer des impostes vitrés opaques donnant sur le couloir et la petite chambre (avec sa fenêtre sur cour juste en face).
Plus profonde que large, le mieux était de placer les rangements entre la douche et la vasque pour les maximiser sans étouffer la pièce. Un grand miroir et des murs peints en blanc ou enduit de béton ciré finissent cette pièce désormais agréable, simple et fonctionnelle.

Une chambre modulable avec cloison accordéon
Les anciens propriétaires n'ayant plus besoin que d'une seule chambre, et la deuxième étant très petite, la cloison les séparant avait été abattue. Le propriétaire n'avait pas non plus besoin de deux chambres, mais voulait quand même pouvoir accueillir ponctuellement des amis et de la famille sans avoir de contrainte à la revente.
Remonter simplement la cloison n'était pas idéal car le besoin n'étant pas quotidien, il était dommage de le priver du volume. Je lui ai donc proposé une cloison en accordéon pouvant être entièrement ouverte ou fermée au besoin.
Ouverte, il dispose d'une grande chambre avec un canapé et un beau coin dressing. Fermée, le canapé se déplie pour devenir un lit et l'invité dispose d'une chambre indépendante, puisqu'elle a désormais une porte sur le couloir.
Avant, cette porte donnait sur une pièce placard étroite peu pratique. Cette pièce fourre-tout, devenant inutile au vu de tous les nouveaux rangements créés, a été supprimée pour agrandir la chambre d'appoint tout en créant un dressing ouvert à la première. Cela permet également de donner de la lumière en second jour à la salle d'eau.

Le résultat : modernité et respect du patrimoine
Cette rénovation partielle d'appartement ancien à Bordeaux illustre comment il est possible de moderniser un bien tout en respectant son caractère patrimonial. Les rangements invisibles, la porte coulissante à rideau pour le bureau, et l'îlot en pierre de Frontenac créent un équilibre subtil entre fonctionnalité contemporaine et respect de l'existant.
La cloison accordéon dans la chambre est une solution particulièrement intelligente pour conserver la flexibilité d'usage sans sacrifier le volume au quotidien. L'appartement gagne en rangements, en fonctionnalité et en modernité, tout en préservant les beaux volumes qui font son charme dans ce quartier historique du Jardin Public.
Quelques images de l'appartement existant










Un processus de conception exploratoire
Deux options ont été proposées au propriétaire avant d'aboutir sur la troisième, qui répondait au mieux à toutes ses attentes.
La première proposait une grande cuisine linéaire et graphique, sans îlot, pour dégager tout l'espace au sol, et un mur de rangements dans lequel venait se placer la table à manger.
La deuxième conservait la configuration en îlot avec une double fonction : surplombé d'une belle verrière séparant visuellement salon et cuisine, il servait de rangement et de plan de travail côté cuisine tandis qu'il créait un meuble TV côté salon. Un coin repas monochrome, délimité par du terracotta et un faux plafond, apportait beaucoup de caractère à la pièce.
