Client : N.P | Lieu : Cenon | Surface : 40 m² | Budget : n/c | Projet : Aménagement (mission de conception seule)
Client : N.P | Lieu : Cenon | Surface : 40 m² | Budget : n/c | Projet : Aménagement (mission de conception seule)


Ce local professionnel à Cenon, dans la région de Bordeaux, a été acheté sur plan en contrat VEFA par une psychiatre pour y installer son cabinet médical au rez-de-chaussée d'un immeuble d'habitation. Seulement, l'espace tel que livré ne lui permettait pas d'accueillir ses patients comme il se doit, et il lui était difficile de se projeter pour l'aménager à la hauteur de ses attentes.
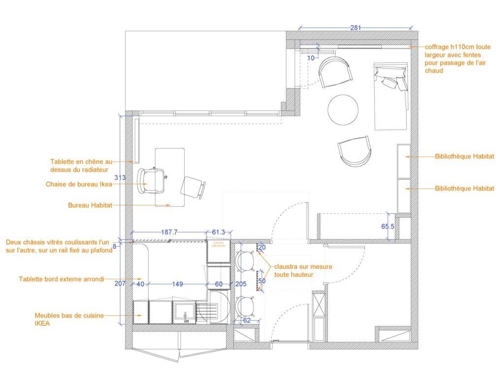
Le local est livré avec un petit sas devant faire office de salle d'attente, desservant une salle d'eau et une deuxième grande pièce. Dans cette dernière, la psychiatre avait besoin de générer trois espaces distincts : un premier pour les séances proprement dites (partie consultation), un deuxième pour les formalités administratives (partie bureau) et un troisième pour son usage personnel avec un coin cuisine et déjeunatoire (partie privative).
Ce local professionnel à Cenon, dans la région de Bordeaux, a été acheté sur plan en contrat VEFA par une psychiatre pour y installer son cabinet médical au rez-de-chaussée d'un immeuble d'habitation. Seulement, l'espace tel que livré ne lui permettait pas d'accueillir ses patients comme il se doit, et il lui était difficile de se projeter pour l'aménager à la hauteur de ses attentes.
Le local est livré avec un petit sas devant faire office de salle d'attente, desservant une salle d'eau et une deuxième grande pièce. Dans cette dernière, la psychiatre avait besoin de générer trois espaces distincts : un premier pour les séances proprement dites (partie consultation), un deuxième pour les formalités administratives (partie bureau) et un troisième pour son usage personnel avec un coin cuisine et déjeunatoire (partie privative).
La plus grosse problématique concernait la salle d'attente, que la psychiatre souhaitait la plus intimiste possible pour que le patient qui attend et le patient qui sort du cabinet ne soient pas obligés de tomber nez à nez l'un sur l'autre. Or, le sas était petit et étroit.
Par ailleurs, elle possédait des meubles de son cabinet actuel qu'elle souhaitait replacer – bureau, fauteuils, bibliothèques – et se demandait comment créer un coin cuisine à la fois agréable pour ses pauses déjeuner, tout en étant fonctionnel et discret. Enfin et surtout, elle aspirait à créer un lieu apaisant et chaleureux pour ses patients, souvent dans des états émotionnels compliqués lors de leur venue.
La plus grosse problématique concernait la salle d'attente, que la psychiatre souhaitait la plus intimiste possible pour que le patient qui attend et le patient qui sort du cabinet ne soient pas obligés de tomber nez à nez l'un sur l'autre. Or, le sas était petit et étroit.
Par ailleurs, elle possédait des meubles de son cabinet actuel qu'elle souhaitait replacer – bureau, fauteuils, bibliothèques – et se demandait comment créer un coin cuisine à la fois agréable pour ses pauses déjeuner, tout en étant fonctionnel et discret. Enfin et surtout, elle aspirait à créer un lieu apaisant et chaleureux pour ses patients, souvent dans des états émotionnels compliqués lors de leur venue.
C'est avec ce cahier des charges et un local sur le point d'être livré que cette professionnelle de santé m'a contacté. Il fallait composer avec de nombreuses contraintes : bien sûr, celles d'un ERP aux normes PMR, mais aussi avec celles du plan électrique, qui avait été défini sans rapport avec l'aménagement réellement souhaité – emplacement des radiateurs, des prises, des sorties de fil. Il fallait, en règle générale, n'avoir à effectuer aucune modification lourde de l'existant livré, puisque ce dernier était neuf.
C'est avec ce cahier des charges et un local sur le point d'être livré que cette professionnelle de santé m'a contacté. Il fallait composer avec de nombreuses contraintes : bien sûr, celles d'un ERP aux normes PMR, mais aussi avec celles du plan électrique, qui avait été défini sans rapport avec l'aménagement réellement souhaité – emplacement des radiateurs, des prises, des sorties de fil. Il fallait, en règle générale, n'avoir à effectuer aucune modification lourde de l'existant livré, puisque ce dernier était neuf.



Pour rendre l'entrée plus intimiste et plus chaleureuse, des claustras sur mesure ont été dessinés. Leur disposition et l'insert demi-lune en panneau plein permettent à la personne assise et à la personne sortant du cabinet de ne pas nécessairement se regarder, sans pour autant recloisonner un volume déjà petit.
L'alcôve ainsi dessinée est soulignée par la peinture : un bleu ciel avec des accents lavande. Le jeu de couleurs douces et chaleureuses et la petite décoration – cadre, tapis, suspension – permettent de donner une identité à cet espace, de s'y sentir bien sans le surcharger. Cette attention portée à l'ambiance est essentielle dans un cabinet de santé mentale, où le patient doit se sentir en sécurité dès son arrivée.
Une fois franchie la porte du cabinet, on retrouve la même palette de couleurs chaleureuses, associée au mobilier en bois clair et aux tissus. Les voilages tamisent légèrement la lumière et donnent une sensation de douceur, de cocon. Cette atmosphère est cruciale pour créer les conditions propices à l'échange thérapeutique.
Le beau mobilier du Docteur trouve parfaitement sa place dans ce nouveau cabinet, associé à de nouvelles pièces comme une banquette scandinave, un tapis coloré, des tableaux et des luminaires de différentes natures. Cette diversité permet de varier les sources de lumière selon le moment de la journée et l'ambiance recherchée, un détail important dans un cabinet où l'on passe de longues heures.




Par un jeu de portes coulissantes en bois et verre opalescent, l'espace cuisine est subtilement dissimulé tout en pouvant rester ouvert lorsque cela est souhaité. Cette solution élégante permet de séparer la partie privative sans créer de rupture visuelle trop marquée.
Une longue tablette donne la possibilité de prendre les repas dans cet espace, et les nombreux rangements rendent cette cuisine compacte très fonctionnelle, en masquant tout ce que l'on souhaite laisser caché. Cette discrétion est essentielle pour maintenir le caractère professionnel et apaisant de l'ensemble du cabinet.
Par un jeu de portes coulissantes en bois et verre opalescent, l'espace cuisine est subtilement dissimulé tout en pouvant rester ouvert lorsque cela est souhaité. Cette solution élégante permet de séparer la partie privative sans créer de rupture visuelle trop marquée.
Une longue tablette donne la possibilité de prendre les repas dans cet espace, et les nombreux rangements rendent cette cuisine compacte très fonctionnelle, en masquant tout ce que l'on souhaite laisser caché. Cette discrétion est essentielle pour maintenir le caractère professionnel et apaisant de l'ensemble du cabinet.


Cet aménagement de cabinet médical démontre comment il est possible de transformer un local livré brut en un espace professionnel parfaitement adapté à sa fonction, même avec des contraintes techniques importantes. Les claustras sur mesure résolvent intelligemment la problématique de l'intimité dans la salle d'attente, tandis que les portes coulissantes permettent de moduler l'espace selon les besoins.
La palette chromatique douce – bleu ciel, lavande, bois clair – et le choix du mobilier créent cette atmosphère apaisante si importante dans un cabinet de psychiatrie. Chaque détail a été pensé pour que les patients se sentent accueillis dans un lieu chaleureux, loin de l'ambiance médicalisée et froide que l'on peut parfois craindre.
Ce projet d'architecture d'intérieur médicale illustre comment l'aménagement d'un espace professionnel peut aller bien au-delà de la simple fonctionnalité pour participer véritablement au bien-être des patients et au confort de travail du praticien. Un cabinet où l'on se sent bien, c'est déjà un premier pas vers le mieux-être.