San Peyre - Aménagement Cabanon Bord de Mer 16m² - La Garde Var
Le cabanon de plage : optimiser 16m² face à la mer


Depuis des années, M., expatriée française en Suisse qui a grandi dans les environs de cette anse préservée, rêvait d'acquérir l'un de ces cabanons de plage si particuliers. Elle y conserve ses meilleurs souvenirs d'enfance et cherchait à retrouver cette proximité avec la mer et la Nature. Un jour enfin, sur ce marché exclusif du bouche-à-oreille, l'occasion se présente et elle saute dessus.
Seulement voilà, quelques travaux de rénovation sont à prévoir pour rendre ce lieu de 16m² confortable, fonctionnel, et apte à accueillir toute la petite famille quand c'est possible. Ces habitats sont finalement des tiny houses avant l'heure, des cabines de bateau à quai : des habitats très minimalistes et précaires à l'époque de leur construction, que l'on a peu à peu équipés d'eau et d'électricité pour plus de confort.

Le défi : aménager sans transformer la structure
Ici, il fallait avant tout apporter du rangement fermé pour que chaque chose puisse avoir sa place sans saturer visuellement le petit espace. Il fallait aussi rafraîchir la micro salle d'eau, rendre le coin cuisine plus fonctionnel et enfin, ajouter un espace bureau pour rendre possibles les échappées télétravail.
Tout ça, en conservant telle quelle la structure existante – mezzanine et salle d'eau en dessous sur le premier tiers – car évacuer des gravats et acheminer matériaux lourds et équipement dans l'anse est vite compliqué. Il s'agissait donc avant tout d'un projet d'agencement, avec des meubles sur mesure préfabriqués en atelier qu'il suffit d'amener et de monter sur place. Par ailleurs, le plan existant, dans ce cube de 16m², était déjà rationnel : inutile donc de le changer.
Une cuisine compacte et astucieuse
La cuisine reste à son emplacement initial et se limite à deux caissons : l'un pour l'évier, l'autre pour la plaque de cuisson. Un plan de travail en Corian a été choisi pour créer un évier dans la masse, très légèrement encastré. Cela permet de recouvrir intégralement la surface de l'évier par deux petites plaques venant à fleur du plan de travail. L'évier disparaît alors au profit de plus de surface de travail.
Des meubles hauts complètent l'aménagement, au milieu desquels se trouve un égouttoir suspendu, pour ne pas encombrer le petit plan de travail. Ce dernier est largement complété par une grande table sur mesure en Fenix (compact stratifié), dont la forme organique permet autant de créer une pièce forte que de maximiser le nombre d'assises sans bloquer la circulation. L'un des côtés de la table est droit, pour pouvoir la caler complètement contre le mur, sous la baie vitrée.





Un linéaire de rangements qui unifie l'espace
Un grand linéaire de rangements hauts et peu profonds habille le mur face à l'entrée. Cette solution permet d'ajouter du rangement, de cacher le tableau électrique et de faire le lien entre tous les espaces : la cuisine, le coin salon et la chambre en mezzanine.
À partir de la mezzanine, ces rangements deviennent un chevet pour le lit, et en dessous, se prolongent en étagères. Les meubles, placés en hauteur pour ne pas empiéter sur la surface de circulation, sont accessibles grâce à une échelle coulissant sur un rail occupant toute la largeur, comme dans les bibliothèques anciennes. Cette solution évoque l'esprit des cabines de bateau tout en apportant une vraie fonctionnalité.
Un coin salon modulable sous la mezzanine
Le coin salon est installé sous la mezzanine, orienté vers la grande fenêtre vue mer. Il est aussi utilisable comme coin nuit pour deux personnes, car la banquette dispose de tiroirs qui doublent la largeur du sommier lorsqu'il est tiré. Cette modularité est essentielle dans un espace aussi compact.
Un escalier à pas japonais multifonction
Un escalier à pas japonais, sécurisé par un garde-corps en métal blanc aux lignes minimalistes, permet d'accéder à la mezzanine de manière plus confortable qu'une échelle classique. Le dessous de l'escalier est optimisé en placard de rangement, dédoublant ainsi sa fonction. Il s'arrête au niveau du passage menant à la petite salle d'eau, entièrement rénovée mais à l'emplacement inchangé.
Le garde-corps de l'escalier se transforme en garde-corps pour le lit dans une même ligne continue. La structure remonte et dessine un cadre qui permet de suspendre deux grands stores enrouleurs, qui intimisent l'espace et occultent la plus grande partie de la lumière lorsque nécessaire.
Une mezzanine complète : bureau, dressing et couchage
Un bureau-commode et un portant suspendu complètent le petit étage. L'angle arrondi du plateau du bureau permet une circulation plus fluide dans cet espace restreint. Des tiroirs sous le plateau et une tringle suspendue permettent aux habitants de ranger leurs affaires avec un accès direct depuis le lit.



Photos de l'état existant





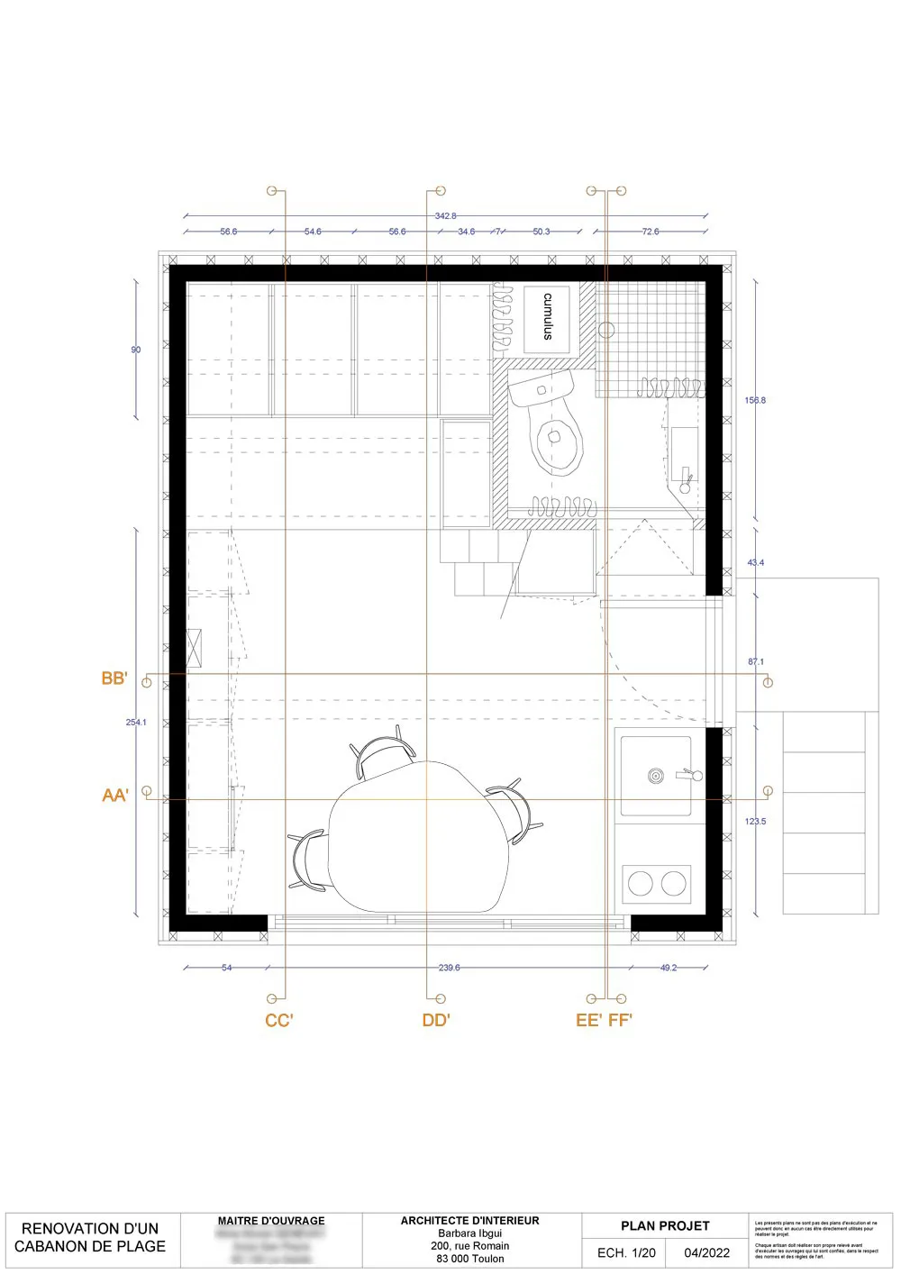
Des plans techniques au service de l'optimisation
Le dossier de plans détaillés pour ce projet consistait principalement à représenter le plus précisément possible tous les agencements entièrement sur mesure pensés pour optimiser au maximum les quelques mètres carrés du cabanon. Chaque centimètre a été exploité, chaque fonction pensée pour se superposer ou se transformer.
21Ce travail technique, qui suit les images 3D et les échanges avec le client, est essentiel pour reproduire fidèlement ce qui a été validé et obtenir un résultat à la hauteur des attentes.

















Le résultat : un micro-habitat face à la mer
Ce cabanon de plage de 16m² est désormais un véritable petit bijou fonctionnel. Il peut accueillir confortablement jusqu'à quatre personnes, dispose d'un vrai espace de travail, d'une cuisine équipée, de nombreux rangements et d'une salle d'eau rénovée. Tout cela sans avoir touché à la structure existante, en respectant les contraintes d'accès propres à cette anse préservée.
Cette rénovation de petit espace démontre comment l'architecture d'intérieur et l'agencement sur mesure peuvent transformer radicalement l'usage d'un lieu, même minuscule. Le cabanon garde son âme de cabine de bord tout en offrant le confort d'un véritable petit appartement vue mer. Un projet où chaque détail compte, où chaque mètre carré est pensé, pour 16m² de pur bonheur salé face à la Méditerranée.