Isneauville - Extension Maison + Rénovation 140m² Normandie - Façade Moderne
Rénovation et extension d'une maison de 140m² : pousser les murs pour s'ouvrir sur le jardin
Les nouveaux propriétaires de cette maison près de Rouen étaient face à plusieurs problématiques : avoir quatre vraies chambres, une grande pièce à vivre, de grandes ouvertures pour maximiser l'apport de lumière naturelle, et moderniser tant que possible l'aspect extérieur de la maison, trop vieillotte à leur goût.
Si l'intérieur était à complètement repenser et rénover, il semblait incontournable de construire une extension afin d'avoir toutes les pièces attendues.
Une extension rationnelle : avancer la maison de 2m50
Pour rationaliser au maximum l'intervention et minimiser l'emprise de l'extension sur le terrain, la solution la plus appropriée s'est imposée : avancer la maison de 2m50 côté jardin sur les deux étages. Cette intervention permet d'agrandir les deux chambres, la pièce à vivre et les menuiseries extérieures, tout en changeant complètement le profil de la maison pour la rendre beaucoup plus moderne.





La façade côté jardin est ouverte sur ses deux tiers, créant de généreuses ouvertures vitrées qui transforment radicalement le rapport de la maison avec son environnement. Le mur porteur à l'intérieur ainsi que la plupart des cloisons existantes sont conservés, ce qui limite les interventions structurelles lourdes.
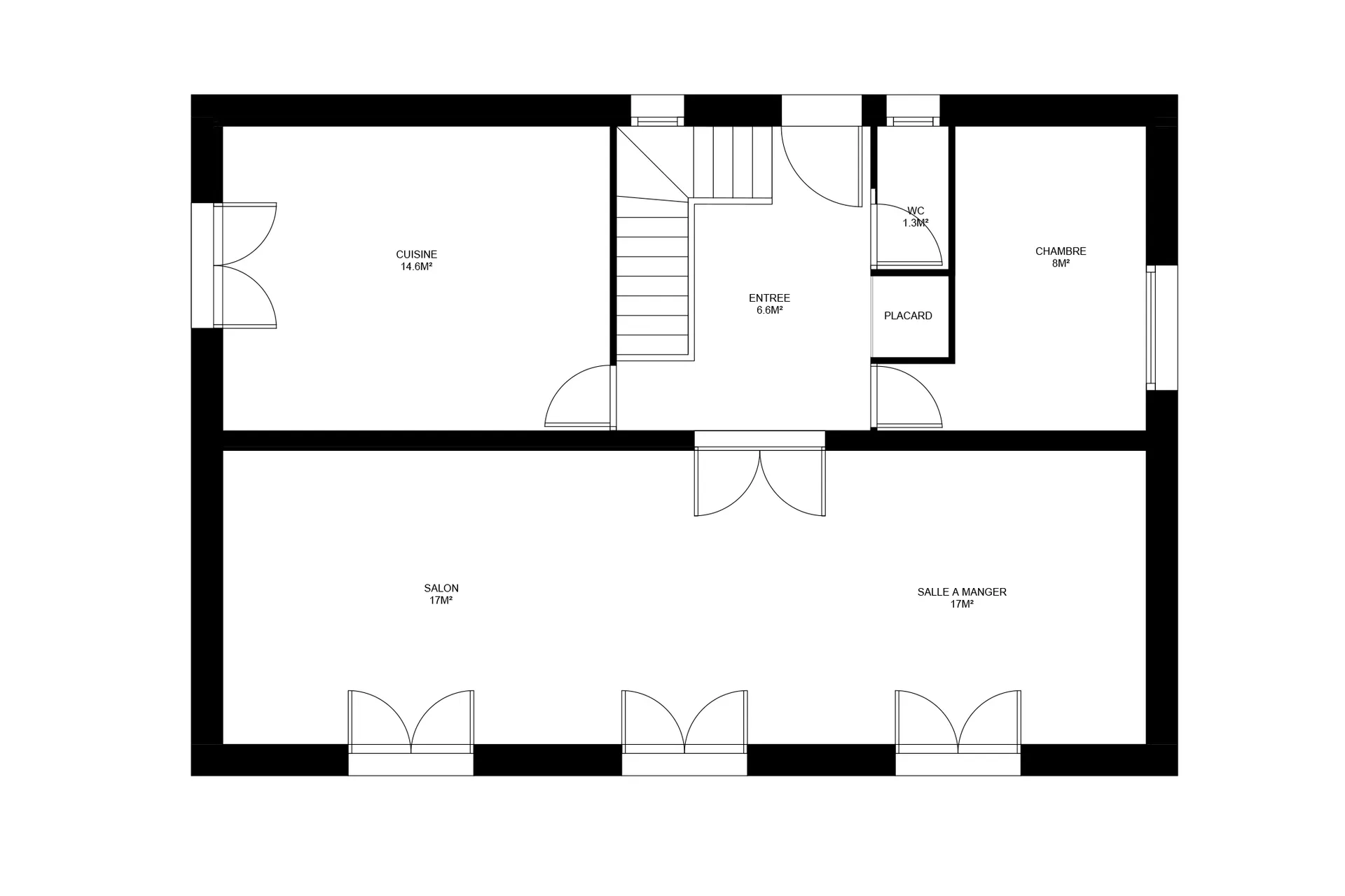
Le rez-de-chaussée : une grande pièce à vivre ouverte
L'ancienne cuisine au rez-de-chaussée devient une chambre d'ami avec salle d'eau, tandis que la petite chambre côté entrée se transforme en buanderie-cellier. La pièce à vivre agrandie comporte désormais la cuisine, la salle à manger et le salon, créant un grand espace convivial qui profite pleinement des nouvelles ouvertures sur le jardin.
Cette redistribution permet de créer un véritable espace de vie familial, lumineux et ouvert sur l'extérieur, là où les pièces étaient auparavant cloisonnées et sombres.
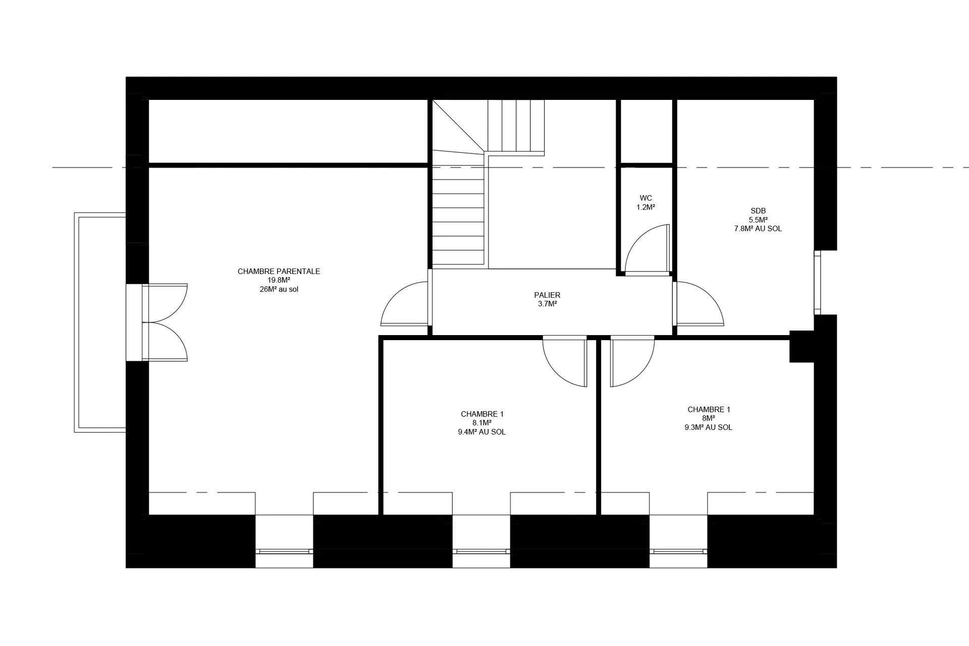
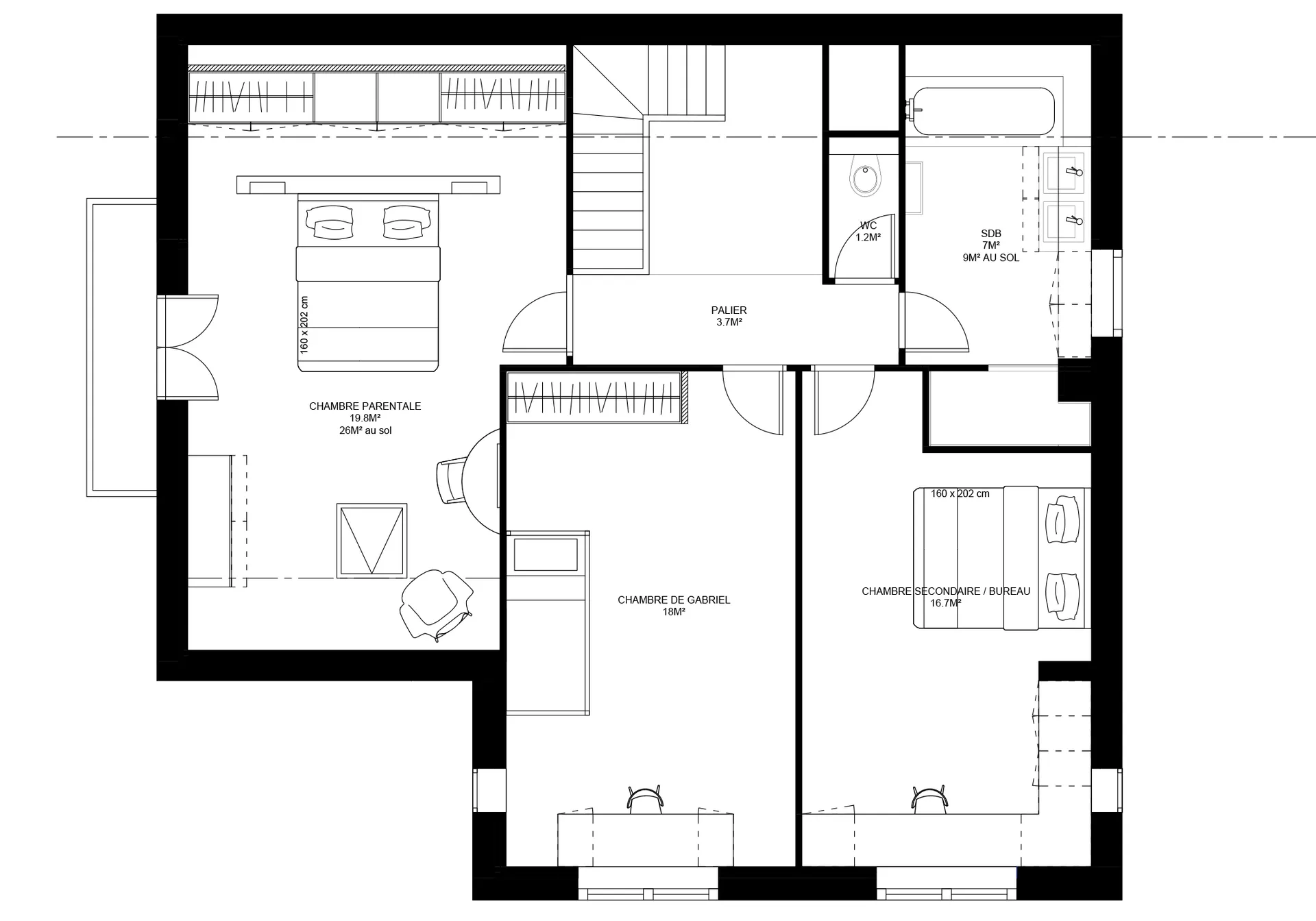
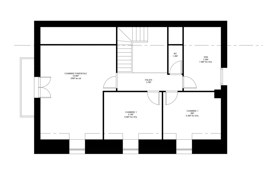
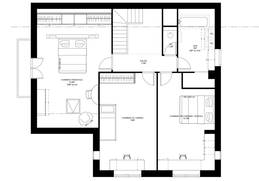
L'étage : des chambres spacieuses et lumineuses
À l'étage, les deux petites chambres ont doublé de volume et ne sont plus mansardées grâce à l'extension. Cette transformation change radicalement leur confort d'usage. La salle de bain est légèrement agrandie pour y intégrer une douche, et la grande chambre existante est simplement réaménagée pour exploiter les sous-pentes.
L'extension permet ainsi d'obtenir les quatre vraies chambres souhaitées par les propriétaires, avec des volumes généreux et une belle luminosité.


La façade côté jardin est ouverte sur ses deux tiers, créant de généreuses ouvertures vitrées qui transforment radicalement le rapport de la maison avec son environnement. Le mur porteur à l'intérieur ainsi que la plupart des cloisons existantes sont conservés, ce qui limite les interventions structurelles lourdes.
Le rez-de-chaussée : une grande pièce à vivre ouverte
L'ancienne cuisine au rez-de-chaussée devient une chambre d'ami avec salle d'eau, tandis que la petite chambre côté entrée se transforme en buanderie-cellier. La pièce à vivre agrandie comporte désormais la cuisine, la salle à manger et le salon, créant un grand espace convivial qui profite pleinement des nouvelles ouvertures sur le jardin.
Cette redistribution permet de créer un véritable espace de vie familial, lumineux et ouvert sur l'extérieur, là où les pièces étaient auparavant cloisonnées et sombres.
L'étage : des chambres spacieuses et lumineuses
À l'étage, les deux petites chambres ont doublé de volume et ne sont plus mansardées grâce à l'extension. Cette transformation change radicalement leur confort d'usage. La salle de bain est légèrement agrandie pour y intégrer une douche, et la grande chambre existante est simplement réaménagée pour exploiter les sous-pentes.
L'extension permet ainsi d'obtenir les quatre vraies chambres souhaitées par les propriétaires, avec des volumes généreux et une belle luminosité.


Le résultat : une maison métamorphosée
Cette rénovation avec extension démontre comment une intervention architecturale ciblée – avancer la façade de 2m50 sur deux niveaux – peut transformer radicalement une maison. Non seulement l'intérieur gagne en surface et en lumière, mais l'aspect extérieur se modernise complètement.
Les grandes ouvertures créées côté jardin changent totalement la perception de la maison, tant de l'intérieur que de l'extérieur. La maison passe d'un aspect vieillot et fermé à une esthétique contemporaine et ouverte sur son environnement.
Ce projet d'extension de maison illustre l'importance d'une réflexion globale qui intègre à la fois les besoins fonctionnels – quatre chambres, une grande pièce à vivre – et les aspects esthétiques et lumineux. En minimisant l'emprise au sol de l'extension tout en maximisant son impact, nous avons créé une maison qui répond parfaitement aux attentes d'une famille moderne, tout en respectant les contraintes budgétaires et foncières du projet.
Quelques images de la maison existante puis du chantier
Suivi de chantier non réalisé, mission de conception uniquement sur ce projet





















