Client : Snark Factory | Lieu : Bordeaux | Surface : 550 m² | Budget : n/c | Projet : Rénovation complète
Client : Snark Factory | Lieu : Bordeaux | Surface : 550 m² | Budget : n/c | Projet : Rénovation complète
Cet espace de bureaux est situé en plein centre-ville de Bordeaux, rendant particulièrement attrayants ses 550 mètres carrés. Une jeune entreprise a décidé de s'y implanter pour développer son activité mixte d'accompagnement technique et opérationnel de startups, entre incubateur, studio de développement et agence digitale. Mais si le potentiel était grand, l'état actuel de cet ancien tri postal ne correspondait ni aux attentes et aux besoins de la nouvelle entreprise, ni à la typologie de l'espace.
Le plateau, de 33m de large et 19m de long, n'a de fenêtres qu'aux deux extrémités les plus éloignées. Un faux plafond daté et des cloisonnements rendaient l'espace labyrinthique. L'idée était donc d'ouvrir au maximum pour augmenter l'apport de lumière naturelle et dégager de beaux volumes.
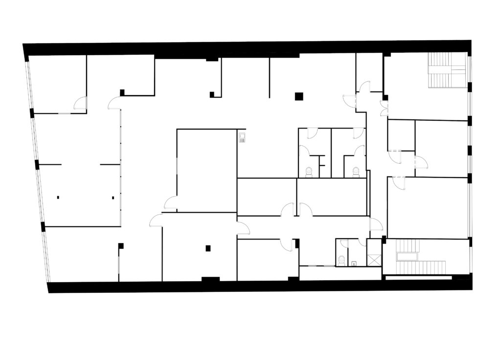
Le plan existant révélait un nombre important de pièces, la plupart n'ayant aucune source de lumière naturelle. Cette configuration était totalement inadaptée à un espace de coworking moderne et à l'esprit de collaboration recherché par Snark Factory, l'entreprise à l'initiative du projet.
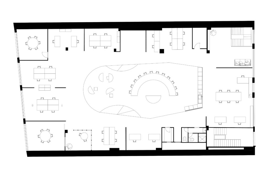
Le parti pris a été d'organiser les espaces de travail en périphérie, et de créer, au centre, un véritable lieu de vie rendant possible une réelle synergie entre les startups accueillies. Cette disposition permet aux entreprises incubées de bénéficier de la lumière naturelle pour leurs postes de travail, tout en créant un cœur d'activité propice aux échanges et aux rencontres spontanées.
Esthétiquement, c'est le parti du brut et de l'industriel qui a été pris. Les poutres structurelles, cachées par l'ancien faux-plafond, sont ainsi laissées nues, et l'ensemble de la plateforme est construite en bois naturel.
C'est le contreplaqué de pin, bois de la région, qui a été choisi. De la plateforme s'extrudent des formes monolithiques, créant les éléments de mobilier : une cuisine-bar, une immense table, des petites estrades et des tables basses sont autant d'espaces de travail informels que de lieux de vie spontanés.
Cette approche monolithique crée une unité visuelle forte tout en offrant une grande variété d'espaces d'usage : on peut y travailler seul sur son ordinateur, se réunir en équipe autour de la grande table, ou échanger de manière informelle au bar.






Cette rénovation de bureaux transforme radicalement un ancien tri postal en un espace de travail moderne et chaleureux. En décloisonnant entièrement le plateau et en organisant les fonctions de manière intelligente – espaces privés en périphérie, espaces partagés au centre –, nous avons créé un incubateur de startups qui favorise naturellement les interactions.
L'utilisation du contreplaqué de pin pour créer une plateforme centrale avec mobilier intégré apporte chaleur et caractère à cet espace de coworking. L'esthétique industrielle assumée – poutres apparentes, matériaux bruts – crée une ambiance propice à la créativité et à l'innovation, en phase avec l'esprit startup.
Ce projet d'aménagement de bureaux professionnels de 550m² démontre comment une réflexion approfondie sur les usages et les circulations peut transformer un espace contraint et sombre en un lieu de travail lumineux et collaboratif. Un espace de coworking qui devient un véritable catalyseur de synergies entre les entreprises accueillies, où l'architecture intérieure devient un outil au service de l'innovation et de la collaboration.

Ci-dessus, le plan existant du local : labyrinthique de part le nombre de pièces, la plupart n'ayant aucune source de lumière naturelle.
Ci dessous, le plan du projet : le plateau est mis à nu, les espaces de travail personnels sont installés en périphérie tandis que l'espace de vie commun occupe tout le centre du plateau.
Ci-dessus, le plan existant du local : labyrinthique de part le nombre de pièces, la plupart n'ayant aucune source de lumière naturelle.
Ci dessous, le plan du projet : le plateau est mis à nu, les espaces de travail personnels sont installés en périphérie tandis que l'espace de vie commun occupe tout le centre du plateau.

Images 3D réalisées pendant la phase conception afin de visualiser le rendu du projet, le valider avec les clients et le faire comprendre au mieux aux entreprises à même de le réaliser.
Images 3D réalisées pendant la phase conception afin de visualiser le rendu du projet, le valider avec les clients et le faire comprendre au mieux aux entreprises à même de le réaliser.