Tiny House - Conception Tiny House 40m² Le Perche - Construction Bois
Conception d'une tiny house de 40m² dans le Perche : la maison de vacances minimaliste

Amoureux des paysages et du calme du Perche, à deux heures de voiture de leur vie parisienne, un couple avec deux jeunes enfants a décidé d'y acheter un terrain pour construire leur maison de week-end et de vacances de rêve. Seulement, pas n'importe quelle maison ! Loin d'eux l'envie de s'encombrer d'une grande bâtisse difficile et coûteuse à entretenir, très grande pour finalement n'y accueillir des proches qu'une fois par an, et dans laquelle on passe plus de temps à chauffer et nettoyer qu'à profiter.
Le concept : une tiny house au cœur de la nature
Le couple est tombé sous le charme du concept des tiny houses voilà quelques années déjà, et dans leurs têtes a germé l'idée de construire la leur un jour, pour s'échapper du tumulte de la vie parisienne dès que possible et être alors au plus proche de la Nature. Pas plus de mètres carrés que nécessaire, des espaces fonctionnels et optimisés, de grandes ouvertures sur l'extérieur : le cahier des charges était clair et concis.
J'ai conçu ce projet en collaboration avec Shohei Kuma de l'agence Kuma & Elsa, pour donner vie à cette vision d'une maison de vacances épurée et intimement connectée à son environnement.
Les contraintes : construire dans un parc naturel régional
Le grand terrain de 4000m² (deux lots vendus ensemble) est situé dans le parc naturel régional du Perche, et toute construction est donc soumise à l'approbation des Architectes des Bâtiments de France. Le cahier des recommandations architecturales est conséquent, notamment concernant l'esthétique extérieure des constructions : pente du toit, revêtement, disposition et forme des ouvertures.
Le respect de ces différents critères croisé à la typologie du terrain a conditionné l'aspect de l'enveloppe de la maison. Le placement en limite de propriété, côté route, étant obligatoire, il s'est très vite imposé que la façade aveugle qui la longe protégerait du bruit et des vis-à-vis. Les larges ouvertures sont privilégiées côté jardin. Le volume de la maison pivote légèrement sur son axe depuis l'angle Nord-Est pour venir créer une terrasse.
Maximiser les volumes : libérer les façades
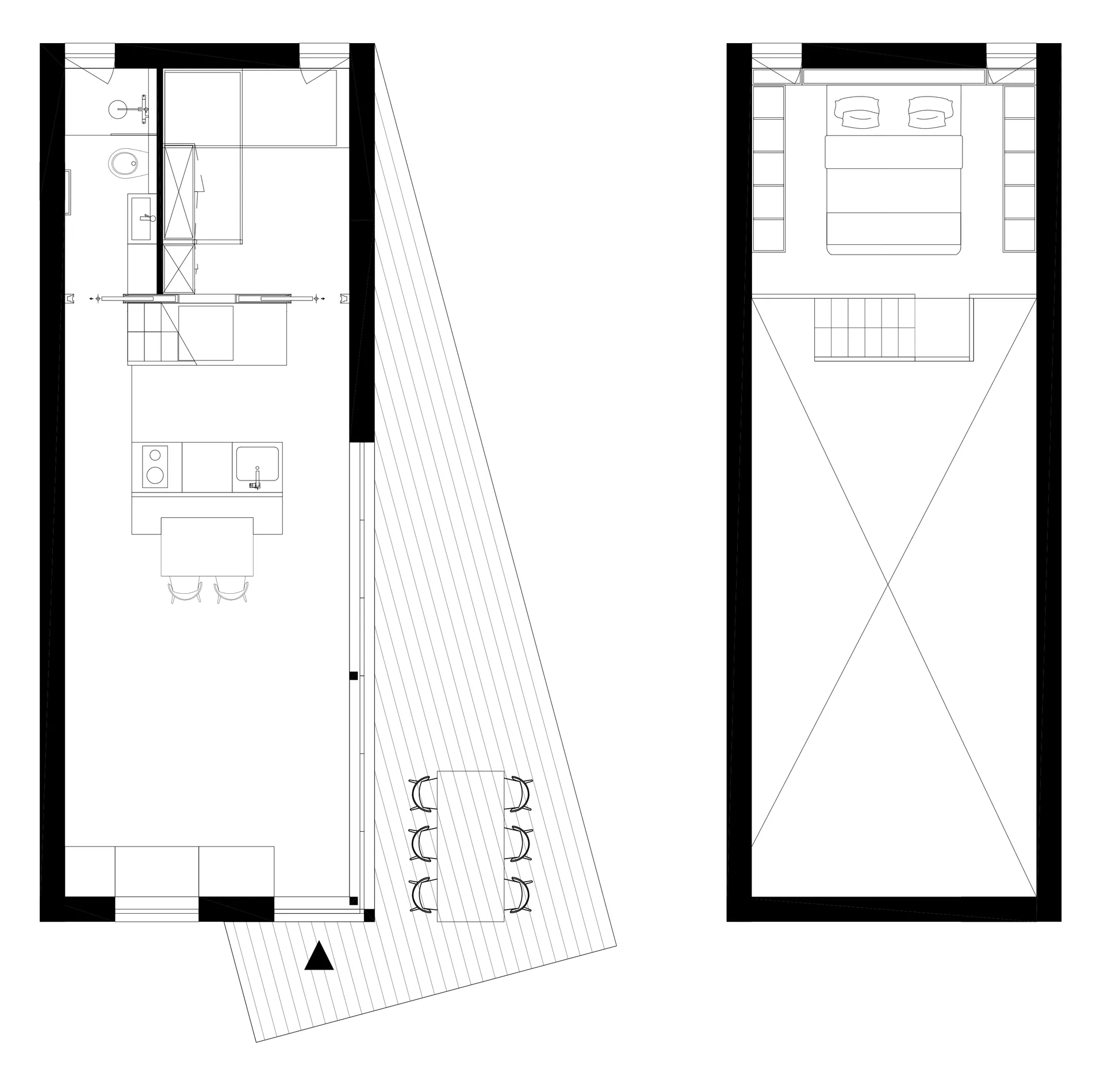
Pour maximiser les volumes d'espace de vie et éviter un effet couloir, les grands murs de façades sont libérés de tout aménagement. Ce sont les pignons et le centre du volume qui sont habités. Un grand meuble sur mesure vient doubler tout le pignon sud tout en créant de beaux cadrages sur la Nature environnante.
Un petit îlot de cuisine minimaliste vient séparer l'accès vers la salle d'eau et vers la chambre des enfants. Un escalier à pas japonais a été installé parallèlement, en plein centre du plateau, pour bénéficier de la plus haute hauteur sous plafond. Il donne accès à la chambre parentale en mezzanine.
40m² optimisés avec un plafond cathédrale
La maison ne fait que 34m² au sol, auxquels s'ajoutent 6m² Carrez de mezzanine (9m² au sol), soit 40m² habitables au total. Elle bénéficie en revanche d'un très beau volume grâce au plafond cathédrale, la double hauteur étant totale sur les deux tiers de la maison, avec 5m10 au faîtage intérieur.
Cette générosité verticale compense la compacité de la surface au sol et crée une véritable sensation d'espace, loin de l'effet étriqué que l'on pourrait craindre dans une construction de 40m².
Les espaces pensés pour quatre personnes
La chambre des enfants dispose de lits superposés en quinconce sur mesure, optimisant l'espace tout en créant deux véritables espaces individuels pour chaque enfant. La salle d'eau compacte mais fonctionnelle répond aux besoins d'une famille en week-end ou en vacances.
En mezzanine, la chambre parentale bénéficie de la hauteur sous faîtage et d'une intimité préservée, tout en restant connectée visuellement au reste de la maison grâce à la double hauteur.








Le résultat : une maison de vacances sans superflu
Cette tiny house dans le Perche illustre parfaitement le concept d'habitat minimaliste : ne garder que l'essentiel, optimiser chaque mètre carré, et privilégier la qualité de l'espace sur la quantité. Le grand meuble sur mesure côté jardin, les larges ouvertures cadrées sur la nature, et le plafond cathédrale créent une expérience spatiale riche malgré la surface réduite.
La façade aveugle côté route et les grandes ouvertures côté jardin créent un effet de cocon protégé qui s'ouvre généreusement sur les 4000m² de terrain. On ne passe pas son temps à entretenir une grande maison, mais à profiter de l'extérieur et du calme du Perche.
Ce projet de construction bois démontre comment l'architecture contemporaine peut s'intégrer harmonieusement dans un parc naturel régional protégé, en respectant les contraintes des ABF tout en proposant une vision moderne de l'habitat de loisirs. Une maison de week-end pensée pour l'essentiel : la famille, la nature, et la déconnexion du rythme parisien.




